福斯特事务所(foster + partners)展示了其新设计的RCC总部,这是该团队在俄罗斯的第一个项目。该办公大楼位于叶卡捷琳堡,重新设计了传统的蜂窝办公室,在质量、舒适度和灵活性方面设立了新的标准。
该建筑共15层,其节能外壳包裹了一系列创新的模块化办公单元,该项目为其城市文物学结构引入了一个新的、独特的图标。
RCC是世界领先的铜生产商之一,其三角形形状的灵感来自于铜的化学结构。建筑的顶部整合了RCC的新标志,这是一个重新命名的标志,反过来,也受到了建筑的启发。
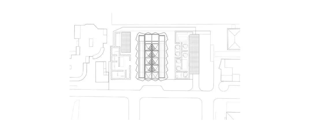
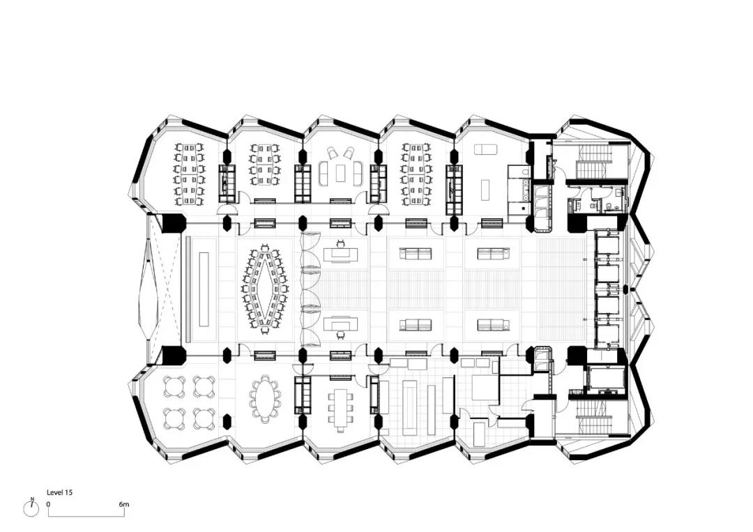
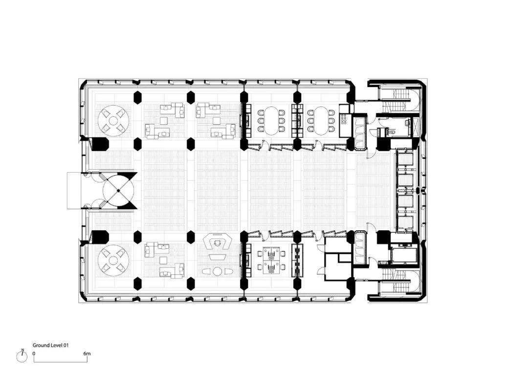
平面图
foster + partners将其在俄罗斯的RCC总部用多面铜立面包裹起来。这个独特的元素彰显了这家俄罗斯铜业公司作为世界领先的铜生产商之一的专业知识。
建筑的三角形语言的灵感来自于铜的晶格结构,而建筑的顶部整合了RCC的新标识,这是一个重新命名的标志,反过来,也受到了建筑的启发。
在开发这座大楼的过程中,设计团队摒弃了传统的大型公共工作空间组织,转而寻求将总部改造为“员工之家”。
办公楼层的出发点是将总部改造为“员工的房子”——而不是传统的大型公共工作空间,房间是更亲密的、家庭规模的。该事务所的工作场所咨询小组分析了客户的运营情况,并帮助设计了这些房间的创新模块化系统。这是与内部工程团队共同开发的,以实现快速施工,并确保理想水平的自然光用于集中工作。
作为员工的住宅,foster + partners在俄罗斯的RCC总部提供了更私密的、国内规模的房间。该事务所的工作场所咨询小组分析了客户的运营情况,并帮助为这些房间设计了创新的模块化系统。这是与内部工程团队共同开发的,以实现快速施工,并确保理想水平的自然光用于集中工作。
每个两层的模块包括一对办公室,一个堆叠在另一个之上——这通过双层包层模块在外部表现出来。模块排列在中央走廊的两侧,作为一个分组空间,设有休息厅,通过玻璃电梯竖井可以看到城市的景色。在第15层,顶部照明的空间为公司范围内的聚会和活动创造了一个灵活的空间。
该设计的目标是BREEAM优秀评级。为了应对叶卡捷琳堡不同季节的温差——通常从+30°C到-30°C——固体和玻璃区域之间的平衡被设计为对冬季低水平阳光的反应,同时在夏季减少阳光直射的热量。
这里可以俯瞰城市和最近经过景观美化的河岸。将绿色植物延伸到建筑的底部,为员工创造了一个私人花园。景观与蜂窝的内部安排相呼应,一系列的“外部房间”为员工提供了放松和吃午餐的安静空间。大楼内的其他设施包括视频会议室和董事会会议室、会议空间和行政用餐区。
foster + partners工作室负责人luke fox评论道:“RCC的新总部是我们在俄罗斯完成的第一座建筑,它体现了我们对创新的承诺,并标志着一个漫长而富有成效的过程的高潮。”在整个过程中,我们的目标是在非常具有挑战性的条件下保持建筑的卓越质量。”
区位图
平面图
立面图
剖面图
细部节点图
建筑师:foster + partners 福斯特事务所
地点:俄罗斯 叶卡捷琳堡
面积:18450 m²
年份:2021
BDC设计,四川黑石信德建筑工程有限公司,10年来只关注企业空间品牌服务这一件事,致力于为注重“企业形象”和“品牌内涵”的高要求企业客户提供成都办公室设计,成都办公室装修,成都写字楼设计,成都写字楼装修等服务。Tel:17502830762


